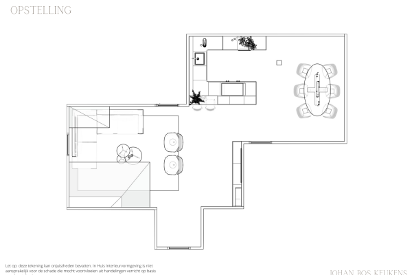
Compleet interieurplan appartement in Haaksbergen
Voor een appartement in het centrum van Haaksbergen ontwierpen we een compleet interieurplan waarbij kleuren en materialen perfect op elkaar zijn afgestemd. De keuken sluit naadloos aan op het totale interieur en versterkt de rustige, samenhangende uitstraling van de woning. Daarnaast realiseerden we een op maat gemaakt tv-meubel dat het ontwerp compleet maakt.





























